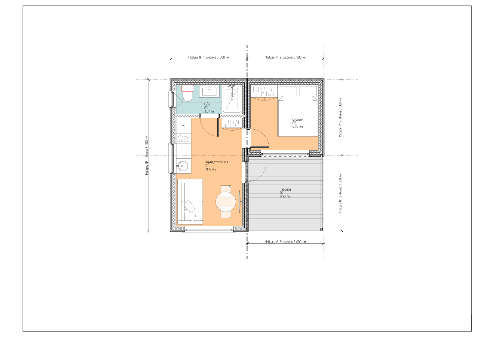
Просторный компактный дом для тех, кто хочет больше – и за городом, и в бюджете
27 м² жилого пространства – это уже полноценная кухня-гостиная, отдельная спальня и санузел. Плюс терраса 9 м² для утреннего кофе или вечернего воздуха. Популярный выбор для постоянного загородного жилья, аренды и глэмпинга
9 м²
Площадь террасы
1
Количесвто
спален
36 м²
Площадь
с террасами
Дом "Basic-36"
Монтаж за 1 день
Доставка по всей России
Срок службы 50 лет
Под ключ
Круглый год
Никакой стройки — дом готов к заезду сразу после установки
Привезём и установим в любой регион — работаем по всей стране
Каркас из сухой строганой доски — дом который простоит десятилетия
Фундамент, электрика, водоснабжение, септик — берём на себя всё
Комфортно при -30°C — не дача, а полноценный дом
Приезжайте к нам в гости!
Мы покажем реализованные объекты и расскажем, чем сможем вам помочь
Производство: г. Новосибирск, ул. Выборная, 199/3 корпус 1
Офис: г. Новосибирск, ул. Выборная, 199/3 корпус 1
Офис: г. Новосибирск, ул. Выборная, 199/3 корпус 1