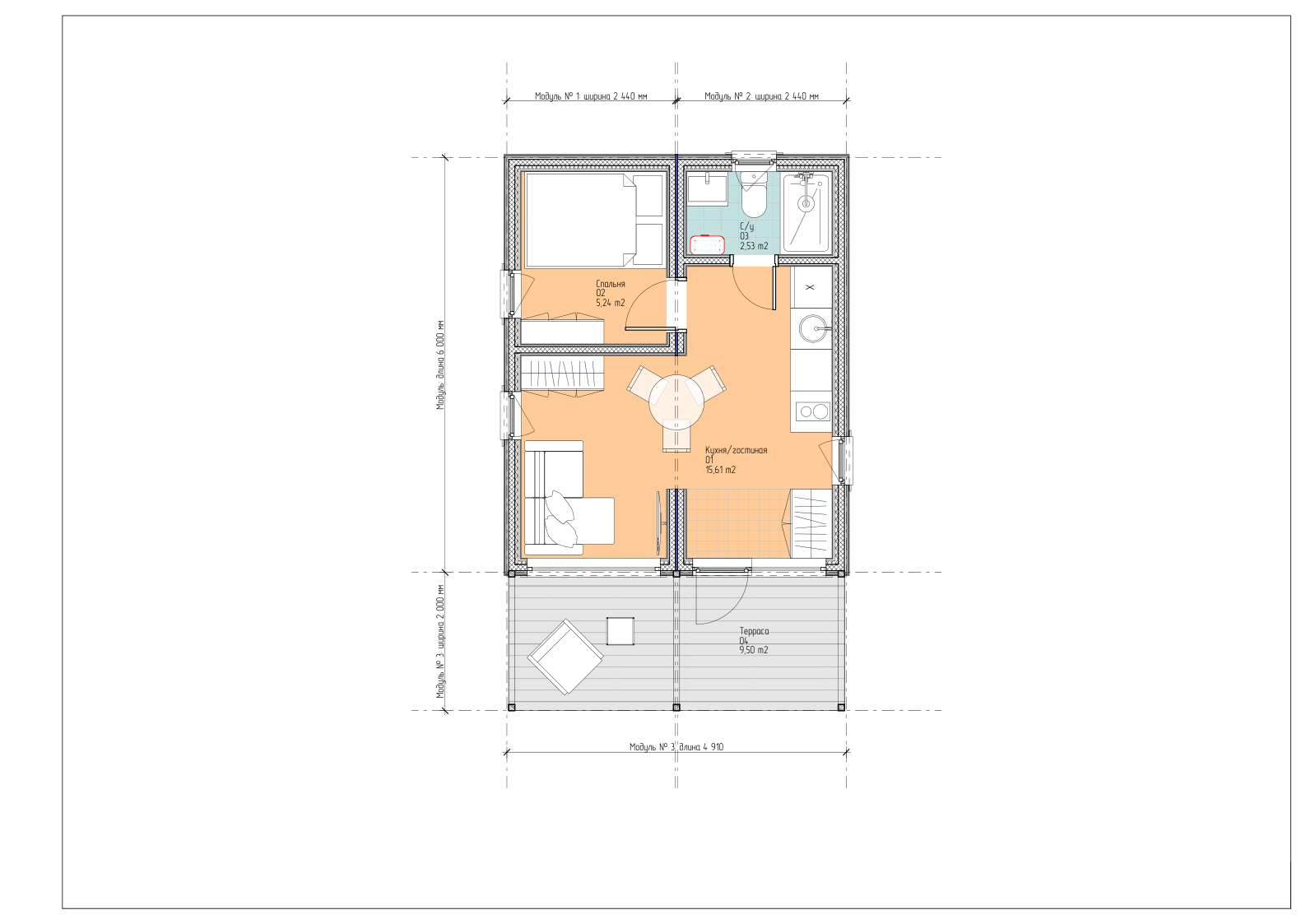
40 м² для семьи - когда хочется больше пространства
Scandi 40 это уже полноценный семейный дом: просторная кухня-гостиная, отдельная спальня, санузел и место для всего, что важно. Идеален для семьи с ребёнком, для постоянного проживания за городом или как основной дом на участке
10 м²
Площадь террасы
1
Количесвто
спален
40 м²
Площадь
с террасами
Дом "Scandi-40"
Монтаж за 1 день
Доставка по всей России
Срок службы 50 лет
Под ключ
Круглый год
Никакой стройки — дом готов к заезду сразу после установки
Привезём и установим в любой регион — работаем по всей стране
Каркас из сухой строганой доски — дом который простоит десятилетия
Фундамент, электрика, водоснабжение, септик — берём на себя всё
Комфортно при -30°C — не дача, а полноценный дом
Приезжайте к нам в гости!
Мы покажем реализованные объекты и расскажем, чем сможем вам помочь
Производство: г. Новосибирск, ул. Выборная, 199/3 корпус 1
Наш офис: г. Новосибирск, ул. Выборная, 199/3 корпус 1
Наш офис: г. Новосибирск, ул. Выборная, 199/3 корпус 1