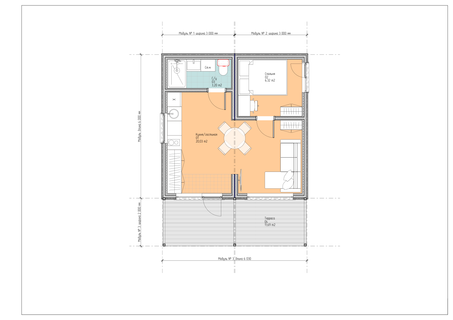
48 м² - для тех, кому 40 мало, а 60 пока не нужно
Золотая середина в линейке Scandi. Больше пространства для семьи: удобная кухня-гостиная, спальня, санузел и ещё остаётся воздух. Отлично работает и как постоянное жильё, и как загородный дом на выходные для семьи с детьми
12 м²
Площадь террасы
1-2
Количесвто
спален
48 м²
Площадь
с террасами
Дом "Scandi-48"
Монтаж за 1 день
Доставка по всей России
Срок службы 50 лет
Под ключ
Круглый год
Никакой стройки — дом готов к заезду сразу после установки
Привезём и установим в любой регион — работаем по всей стране
Каркас из сухой строганой доски — дом который простоит десятилетия
Фундамент, электрика, водоснабжение, септик — берём на себя всё
Комфортно при -30°C — не дача, а полноценный дом
Приезжайте к нам в гости!
Мы покажем реализованные объекты и расскажем, чем сможем вам помочь
Производство: г. Новосибирск, ул. Выборная, 199/3 корпус 1
Наш офис: г. Новосибирск, ул. Выборная, 199/3 корпус 1
Наш офис: г. Новосибирск, ул. Выборная, 199/3 корпус 1