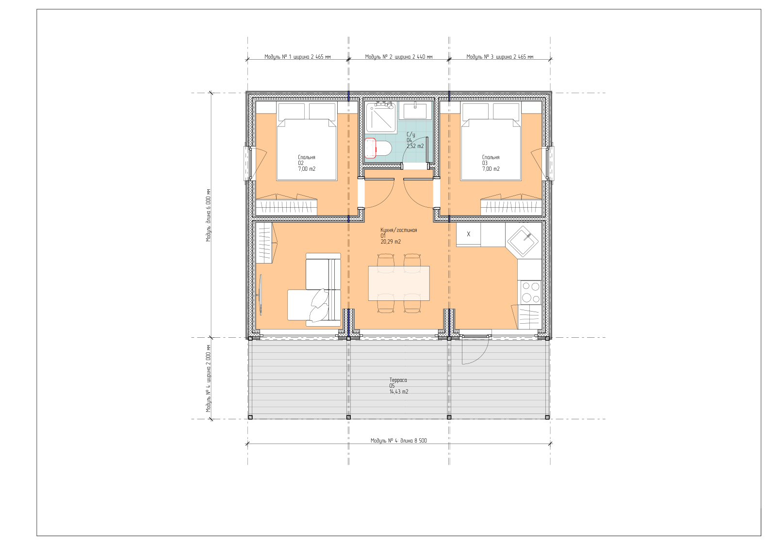
60 м² полноценный дом для семьи, где не надо выбирать между кухней и гостиной
Scandi 60 - это пространство, где семье реально комфортно: две отдельные зоны, полноценный санузел, просторная кухня-гостиная. Для тех, кто хочет жить за городом по-настоящему, не «дачу на лето», а свой дом
15 м²
Площадь террасы
1-2
Количесвто
спален
60 м²
Площадь
с террасами
Дом "Scandi-60"
Монтаж за 1 день
Доставка по всей России
Срок службы 50 лет
Под ключ
Круглый год
Никакой стройки — дом готов к заезду сразу после установки
Привезём и установим в любой регион — работаем по всей стране
Каркас из сухой строганой доски — дом который простоит десятилетия
Фундамент, электрика, водоснабжение, септик — берём на себя всё
Комфортно при -30°C — не дача, а полноценный дом
Приезжайте к нам в гости!
Мы покажем реализованные объекты и расскажем, чем сможем вам помочь
Производство: г. Новосибирск, ул. Выборная, 199/3 корпус 1
Наш офис: г. Новосибирск, ул. Выборная, 199/3 корпус 1
Наш офис: г. Новосибирск, ул. Выборная, 199/3 корпус 1