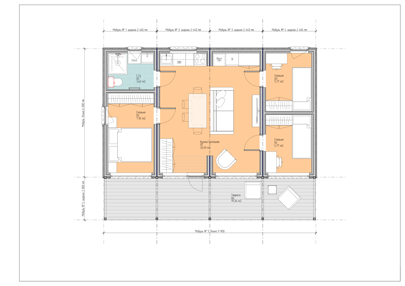
80 м² - дом для большой семьи, где всем хватает места
Scandi 80 это уже не «модуль», а полноценный загородный дом: несколько спален, просторная гостиная, большая кухня, санузел. Для семей с 2–3 детьми, для тех, кто переезжает из города насовсем, для тех, кто хочет принимать гостей
20 м²
Площадь террасы
2
Количесвто
спален
80 м²
Площадь
с террасами
Дом "Scandi-80"
Монтаж за 1 день
Доставка по всей России
Срок службы 50 лет
Под ключ
Круглый год
Никакой стройки — дом готов к заезду сразу после установки
Привезём и установим в любой регион — работаем по всей стране
Каркас из сухой строганой доски — дом который простоит десятилетия
Фундамент, электрика, водоснабжение, септик — берём на себя всё
Комфортно при -30°C — не дача, а полноценный дом
Приезжайте к нам в гости!
Мы покажем реализованные объекты и расскажем, чем сможем вам помочь
Производство: г. Новосибирск, ул. Выборная, 199/3 корпус 1
Наш офис: г. Новосибирск, ул. Выборная, 199/3 корпус 1
Наш офис: г. Новосибирск, ул. Выборная, 199/3 корпус 1